Bremen – Gestalten Sie mit! Gewerbefläche zur individuellen Vermietung (Gastronomie ausgeschlossen)
Kontaktdaten
-
NameFrau Burmeister HHB-Gruppe
-
AnschriftVahrer Straße 206
28329 Bremen -
E-Mail
Objektdaten
-
Objekt-ID7510.001
-
ObjekttypenBüro/Praxis, Bürohaus
-
AdresseWesterstraße 98/104
28199 Bremen
(Alte Neustadt) -
Etagen im Haus1
-
Bürofläche ca.305 m²
-
HeizungsartZentralheizung
-
Baujahr1960
-
Zustandnach Vereinbarung
-
AusstattungStandard
-
Stellplätze gesamt3
-
Preisauf Anfrage
Ausstattung / Merkmale
- ✓ Barrierefrei
Objektbeschreibung
Beschreibung
WICHTIG FÜR DIE BESICHTIGUNG:
Für die Kontaktaufnahme übersenden Sie uns bitte eine E-Mail über dieses Portal. Bitte haben Sie Verständnis dafür, dass nur Anfragen mit vollständig ausgefüllten Kontaktdaten (Name,
Adresse und Telefonnummer) berücksichtigt werden.
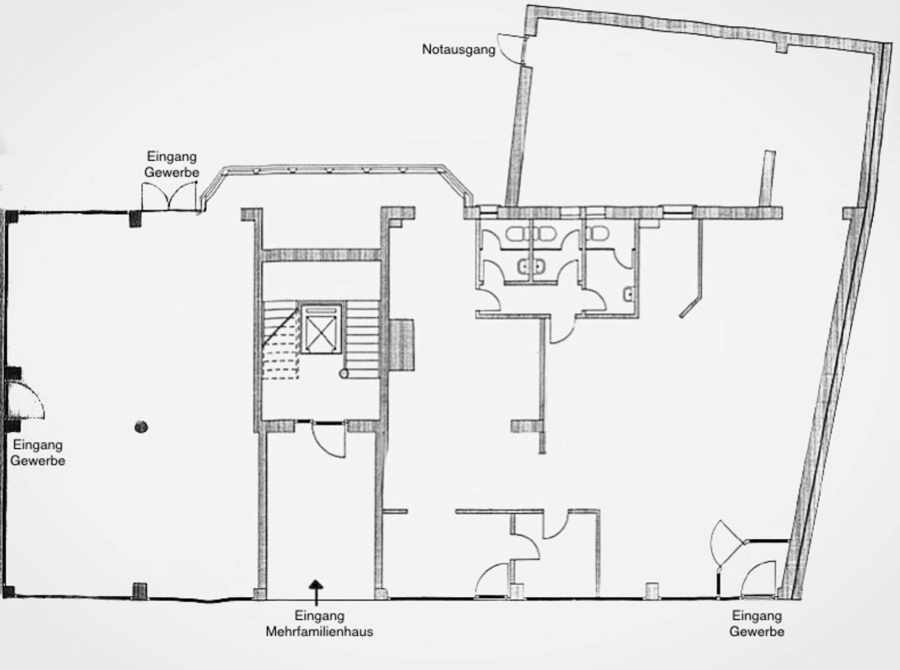
Die großzügige Gewerbefläche befindet sich im Erdgeschoss eines gepflegten Mehrfamilienhauses in Top-Lage.
Die oberhalb des Gewerbes liegenden Wohnungen sind über einen separaten Eingang erreichbar.
Das Gewerbe selbst verfügt über drei Eingänge und ist barrierefrei erreichbar.
Ausstattung
- Bitte beachten Sie, dass die Bilder zur besseren Veranschaulichung mithilfe von KI generiert wurden.*
- Zwei zusammenhängende Gewerbeflächen mit einer Gesamtfläche von ca. 305 m² (Teilung möglich)
- Flexible Nutzung beispielsweise Büro, Praxis oder Geschäftsräume
- Die weitere Gestaltung der Räumlichkeiten einschließlich der Ausstattung (z.B. Bodenbeläge, Teeküchen etc.) sowie Sonderwünsche können individuell verhandelt werden.
- Notausgang vorhanden für zusätzliche Sicherheit
Sonstiges
Bei Fragen und zur Vereinbarung eines Besichtigungstermins wenden Sie sich bitte per E-Mail an Herrn Golla unter l.golla@hhb-gruppe.de
Zwischenvermietung, Fehler und Irrtum sind vorbehalten.
Lage
Die Westerstraße liegt im beliebten Stadtteil Neustadt am westlichen Weserufer unweit der Neustadtswallanlagen, welche zur Naherholung und ausgedehnten Spaziergängen einladen.
Mehrere Supermärkte, Fachgeschäfte und Restaurants sind in nächster Umgebung angesiedelt.
Die Haltestelle „Westerstraße“ befindet sich vor der Tür und bietet die Verbindung zum Hauptbahnhof sowie ins Stadtzentrum durch die Straßenbahnlinien 1 und 8 sowie die Buslinien 24, 26, 27 und 63.
Über die in unmittelbarer Nähe sich befindende B75 erreicht man in wenigen Autominuten die Autobahnen A1 sowie A27.
Flughafen 10 min | Fernbahnhof 10 min | Autobahn 5 min | Bus 1 min
Westerstraße 98/104, 28199 Bremen, Deutschland (auf Google Maps ansehen)
MIETINTRESSENTEN & MIETER DATENSCHTZ gem. Art. 13 DSVGO
WIR SUCHEN
Grundstücke und Immobilien im Raum
Bremen, Hamburg und Hannover.
wir freuen uns auf Sie!
Wir freuen uns von Ihnen zu hören!
Wir suchen Baugrundstücke von Ackerland über freie Bauflächen bis hin zu bereits bebauten Grundstücken. Auch Makler- und Architektenangebote sind uns willkommen.
Weil Planung, Bauleitung sowie der Verkauf üblicherweise durch unsere eigenen Mitarbeiter erfolgt, können wir einen deutlich höheren Grundstückspreis bieten. Profitieren auch Sie von unserer Erfahrung.






