BREMEN-SCHWACHHAUSEN – Top Lage, top Schnitt: Eigennutzung oder Kapitalanlage
Kontaktdaten
-
NameFrau Leonie Soukup
-
AnschriftVahrer Straße 206
28329 Bremen -
E-Mail
Objektdaten
-
Objekt-ID2588.014.
-
ObjekttypenEtagenwohnung, Wohnung
-
AdresseScharnhorststraße 36
28211 Bremen
(Radio Bremen) -
Etage2
-
Etagen im Haus3
-
Wohnfläche ca.62 m²
-
Zimmer2
-
Schlafzimmer1
-
Badezimmer1
-
KücheEinbauküche
-
HeizungsartZentralheizung
-
Wesentlicher EnergieträgerGas
-
Baujahr1978
-
Zustandgepflegt
-
AusstattungStandard
-
Stellplätze gesamt1
-
Kaufpreis220.000 EUR
Ausstattung / Merkmale
- ✓ Balkon/Terrasse
- ✓ Einbauküche
- ✓ Keller
- ✓ Personenaufzug
- ✓ Tiefgarage
Energieausweis
-
EnergieausweistypVerbrauchsausweis
-
Ausstellungsdatumnach dem 1.5.2014
-
Baujahr lt. Energieausweis1978
-
PrimärenergieträgerGas
-
Endenergieverbrauch146,30 kWh/(m²·a)
-
EnergieeffizienzklasseE
Objektbeschreibung
Beschreibung
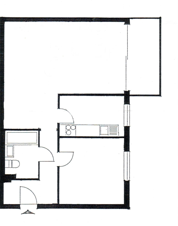
Im beliebten Stadtteil Schwachhausen, in ruhiger und grüner
Wohnlage, befindet sich diese charmante 2-Zimmer-Wohnung im
2. OG eines gepflegten Mehrfamilienhauses mit Aufzug.
Die Wohnfläche von ca. 62 m² überzeugt mit einer großzügigen Raumaufteilung und hellen, freundlichen Zimmern. Vom Eingangsbereich aus erreichen Sie das Schlafzimmer sowie das Badezimmer, bevor Sie in den zentral gelegenen Wohn- und Essbereich gelangen. Von hier aus öffnet sich der Zugang zum sonnigen, nach Südwesten ausgerichteten Balkon.
Die Wohnung befindet sich in einem gepflegtem Zustand.
Aktuell ist die Wohnung nicht vermietet.
Im Keller stehen Ihnen ein Fahrradraum sowie eine gemeinschaftliche Waschküche mit Münz-Waschmaschine und -Trockner zur Verfügung.
Ergänzt wird das Angebot durch einen praktischen Trockenraum.
Die Highlights auf einen Blick:
- Ca. 62 m² Wohnfläche
- 2 Zimmer mit praktischer
Raumaufteilung
- Fahrstuhl
- Schöner Südwest-Balkon
- Gepflegte Einbauküche
- Sofort bezugsfrei
- Ruhige Lage in Bremen-Schwachhausen
- Separater Kellerraum und Hobbykeller
- Trockenraum im Keller
Ausstattung
Der Wohnbereich ist mit Parkettboden ausgestattet, in allen anderen Räumen überzeugt die hochwertige Design-Planke in Holz-Optik.
Die helle Einbauküche bietet viel Stauraum und besticht mit ihrer Funktionalität und modernen Optik. Zu der hochwertigen Ausstattung gehören ein Cerankochfeld, ein Backofen und ein Kühlschrank mit Gefrierfach.
Der Boden und die Wände im Badezimmer sind hell gefliest. Zu den eingebauten weißen Sanitärobjekten gehört u.a. auch eine Badewanne.
Die Wohnung bietet neben dem dazugehörigen separaten 5 m² Kellerraum auch einen zusätzlichen 14 m² Hobbykeller.
Sonstiges
Alle Angaben wurden mit großer Sorgfalt gemacht, dennoch kann für die Richtigkeit keine Gewähr übernommen werden.
Wir weisen auf den baualtersbedingten Zustand hin.
Es wird keine Käuferprovision erhoben.
Der Kauf erfolgt direkt durch den Eigentümer.
Änderungen und Zwischenverkauf bleiben vorbehalten.
Lage
Die Wohnung liegt in der beliebten Scharnhorststraße im Stadtteil Schwachhausen – einer der besten Wohnlagen Bremens.
Einkaufsmöglichkeiten, Cafés, Ärzte und der Bürgerpark befinden sich in direkter Nähe.
Die Anbindung an den öffentlichen Nahverkehr ist hervorragend – die Bremer Innenstadt und der Hauptbahnhof sind in wenigen Minuten erreichbar.
Scharnhorststraße 36, 28211 Bremen, Deutschland (auf Google Maps ansehen)
MIETINTRESSENTEN & MIETER DATENSCHTZ gem. Art. 13 DSVGO
WIR SUCHEN
Grundstücke und Immobilien im Raum
Bremen, Hamburg und Hannover.
wir freuen uns auf Sie!
Wir freuen uns von Ihnen zu hören!
Wir suchen Baugrundstücke von Ackerland über freie Bauflächen bis hin zu bereits bebauten Grundstücken. Auch Makler- und Architektenangebote sind uns willkommen.
Weil Planung, Bauleitung sowie der Verkauf üblicherweise durch unsere eigenen Mitarbeiter erfolgt, können wir einen deutlich höheren Grundstückspreis bieten. Profitieren auch Sie von unserer Erfahrung.












